2025. 8. 31. 11:15ㆍ회원작품 | Projects/Commercial
Blancdubu

이 부지는 서울의 중심지 강남, 삼성동∼테헤란로 이면에 있는 4m 일방도로를 앞에 둔 약 231㎡의 상업지로, 12×20m의 소규모 협소 부지다. 한참 추운 겨울, 지인을 통해 처음 젊은 건축주를 현장에서 만났을 때, 부지에는 2층 경량 골조의 소규모 사무실이 있었다. 도로는 많이 협소했고, 고층 건물 사이에 알코브 형태로 놓여 있었다.
건축주의 요구는 심플했다. “10층 이상이면 좋고, 사옥이나 임대 용도로 괜찮은 땅인가요?” 이 정도였다. 주변은 연속적으로 이어진 고층 건물들이 형성하고 있었고, 그 사이에서 우리 건물을 어떻게 드러낼지 고민이 필요했다.
내부 기둥은 최대한 없애고, 구조는 외부로 드러내며, 천정 또한 플랫한 콘셉트로 초기안을 시작했다. 현재의 다이어고날 패턴은 이러한 구조적 고민에서 출발해 입면 파사드로 진화했다. 전면 도로에서 부지 끝까지 관통할 수 있는 동선을 계획해, 공간의 경계와 흐름을 확장하는 시각적 연속성을 유도했다.
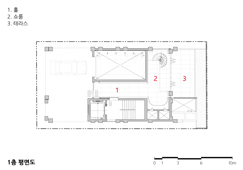
강한 형태적 역동성은 다소 단순한 매스 형태로 제안되었을 수 있으나, 이는 화이트 노출 콘크리트가 지닌 순수성과 ‘다이아몬드 같은 영원성’을 상징하는 블랑드부라는 회사의 브랜드 철학과도 맞닿아 있다. 1층은 최대한 비워 공공성을 부여하고, 코너를 열어 보이도록 해 플로팅 필로티의 개방감을 갖도록 했다.
하나의 다이어고날 패턴은 4개 층의 입면을 분할하며, 각 층의 코너 뷰는 열림과 닫힘을 반복해 다양한 시각적 경험을 제공한다. 임대 건물의 필요 조건인 선큰, 마당, 외부 계단, 층별 화장실, 실용 층고 등의 요소는 협소 부지라는 한계에서 다소 타협이 불가피했다. 아마도 다양한 시퀀스를 시도해보고자 했던 건축사의 바람이 아닐까.
전면 4m 일방도로, 지하 20m 깊이의 터파기, 그로 인한 수많은 민원은 공기를 상당히 지연시켰고, 많은 시간이 흐른 뒤에야 준공을 받을 수 있었다. 현장에서 고군분투한 시공사와 인테리어팀 등 모든 관계자들께 감사드리며, 여러 어려움 속에서도 이해해주신 건축주께도 깊이 고마움을 전한다.
현장은 늘 고군분투의 연속이다. 어쩌면 게임과도 같고, 결국 중요한 건 그 게임을 얼마나 잘 조작하느냐일지도 모른다.



This site is a small, narrow lot (12*20) of commercial land of approximately 70 pyeong, located in front of a 4m one-way road between Samseong-dong and Teheran-ro in Gangnam, the center of Seoul.
In the very cold winter, when I first met a young builder at the site through an acquaintance, there was a small office with a lightweight frame on the second floor.
The road was very narrow and lay in the form of an alcove between high-rise buildings.
The owner’s request was simple. Ten stories or more is good, and the office building. Is it a poor land for rent? It was like this.
The surrounding context was a series of tall, continuous buildings, and we had to make our building known among them.
The inner column was removed as much as possible, and the column was exposed to the outside, but the ceiling also evolved into a flat concept, starting with the initial plan, the current diagonal pattern became a structure, and the structure became a pattern, forming an elevational facade.
The pass was continued so that it could penetrate from the front road to the end of the site, which had the effect of having visual continuity to expand the boundary and flow of space.
The strong formal dynamics may have been suggested by a rather simple mass form, but this also fits the company concept of Blanc de Bou, which symbolizes purity with white exposure and eternity like a diamond.
We tried to give the first floor as much public space as possible by leaving it empty as much as possible, and tried to open up the corners as much as possible to have the view of the floating piloti as it is now.
One diagonal pattern was divided into four layers of elevation, and the corner view was opened on each floor, and the view of each floor was diversified in succession of closing.
The necessary conditions for all rental buildings are classified into sunken, yard, outer staircase, multi-story toilet, and practical floor height, but the narrow site requires some compromise.
Maybe it’s the architect’s desire to get different sequences!
The front one way 4M road, the 20M underground tunnel, and many complaints caused by it led to a significant delay in the air, and after a lot of time, it was only recently possible to receive the completion.
We thank those involved in the construction and interior who struggled at the site, and we also thank the building owners for their understanding and suffering from civil complaints.
The scene seems to be a struggle game. I think I need to manipulate the game well.










| 블랑드부 설계자 | 안병돈 _ 에이앤 종합건축사사무소 건축주 | 주식회사 블랑드부 감리자 | 안병돈_건축사사무소 에이앤 시공사 | 주식회사 씨스페이스, 주식회사 원에이 설계팀 | 송명길, 한병성, 김동현 설계의도 구현 | 건축사사무소 에이앤 대지위치 | 서울특별시 강남구 삼성동 주요용도 | 근린생활시설 대지면적 | 244.20㎡ 건축면적 | 145.19㎡ 연면적 | 1,993.55㎡ 건폐율 | 59.46% 용적률 | 667.42% 규모 | B3F - 12F 구조 | 철근콘크리트구조 외부마감재 | 노출콘크리트위 화이트스테인, THK24로이복층유리(유로그레이) 내부마감재 | 천정_노출콘크리트면처리,지정바리솔,스타라이트(광섬유) 벽_지정도장(벤자민무어) / 바닥_화이트스테인, 무광코팅 설계기간 | 2021. 10 – 2022. 04 공사기간 | 2022. 05 – 2025. 03 사진 | 함영인 구조분야 | 노재천_SDM구조기술사사무소 기계설비·전기·소방분야 | (주)서원이엔씨 |
Blancdubu Architect | Ahn, Byungdon _ AN Architects Client | Blancdubu.inc Supervisor | AN Architects Construction | C-space.inc / oneA.inc Project team | Song, Myeongjl / Han, Byungseong / Kim, Donghyun Design intention realization | AN Architects Location | Samseong-dong, Gangnam-gu, Seoul Program | Neighborhood facilities Site area | 244.20㎡ Building area | 145.19㎡ Gross floor area | 1,993.55㎡ Building to land ratio | 59.46% Floor area ratio | 667.42% Building scope | B3F - 12F Structure | RC Exterior finishing | White Exposed concrete Interior finishing | White Exposed concrete Design period | Oct. 2021 – Apr. 2022 Construction period | May 2022 – Mar. 2025 Photograph | Ham, Young-in Structural engineer | SDM_Nojaecheon Mechanical·Electrical·Fire engineer | Seowon ENC |
'회원작품 | Projects > Commercial' 카테고리의 다른 글
| 강북구 스마트팜 센터 2025.9 (0) | 2025.09.30 |
|---|---|
| 신사 트라노이 2025.8 (0) | 2025.08.31 |
| 봉담 ‘레이어’ CAFE_LEIE 2025.8 (0) | 2025.08.31 |
| 모이핀 스카이 2025.7 (0) | 2025.07.31 |
| 제이린드버그 청담전문점 2025.7 (0) | 2025.07.31 |
